PRZESTRONNY APARTAMENT W NAJŁADNIEJSZEJ CZĘŚCI MIASTECZKA WILANÓW
Ostoja Wilanów | 4 sypialnie | 3 balkony | 2 miejsca parkingowe | Widok na zieleń | Własna ładowarka do samochodów elektrycznych | Duża komórka lokatorska ok 12m2 | Prywatny park dla mieszkańców Ostoja | 5 minut od szkół międzynarodowych
*****
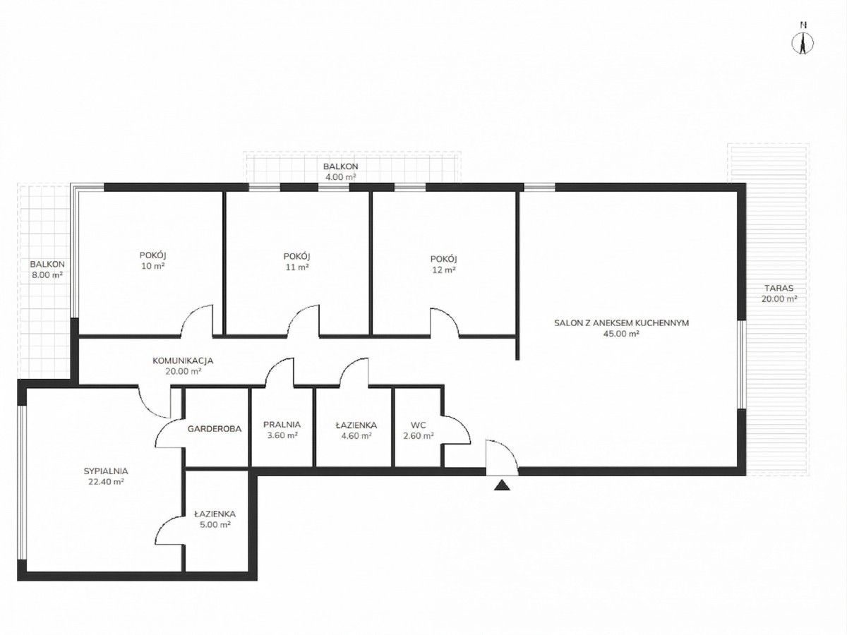
ROZKŁAD POMIESZCZEŃ:
Apartament składa się z:
* Przestronnego salonu o powierzchni około 40m2 z wyjściem na taras z widokiem na park,
* otwartej na salon kuchni, posiadającej spiżarnię (10m2),
* toalety dla gości,
* sypialni master z garderobą i łazienką z prysznicem (20m2+4m2+5m2),
* sypialni z własnym balkonem (10m2),
* 2 Sypialni i łączonym balkonem każda (12m2, 10m2) ,
* łazienki z wanną,
* pomieszczenia gospodarczego (3m2).
STANDARD:
Ten przestronny apartament znajduje się w kameralnym 4-piętrowym budynku z bezpośrednim widokiem na park, do którego dostęp mają wyłącznie mieszkańcy osiedla Ostoja Wilanów. Dzięki swojej powierzchni i aż 3 balkonom jest idealną alternatywą dla domu jednorodzinnego.
W mieszkaniu znajdują się szafy w zabudowie.
Mieszkanie usytuowane jest na 3 strony świata: wschód, zachód i północ zapewniając przyjemne doświetlenie o każdej porze dnia i roku.
Podłoga jest po świeżym lakierowaniu, ściany są częściowo odmalowane.
Mieszkanie jest sprzedawane bez mebli wolnostojących widocznych na pierwszym zdjęciu.
LOKALIZACJA:
Apartament znajduje się w zacisznej części Wilanowa w bliskim sąsiedztwie terenów zielonych w tym Rezerwatu Przyrody Skarpa Ursynowska i Parku Natolińskiego. Na terenie osiedla znajdują się kawiarnie i restauracje, miejsca zabaw dla dzieci oraz liczne ścieżki rowerowe, które sprawiają, że jest to idealne miejsce do życia rodzinnego. Bezpośrednio przy osiedlu znajdują przedszkola, szkoła brytyjska, szkoła niemiecka, SP im. A. Einsteina i liceum międzynarodowe Academeia.
INFORMACJE DODATKOWE:
* Dwa miejsca parkingowe w garażu podziemnym płatne dodatkowo 100.000 zł
* Duża komórka lokatorska płatna dodatkowo 30.000 zł
* Czynsz administracyjny wynosi około 2000 zł / miesięcznie.
Serdecznie zapraszam na prezentację!
Mieszkanie jest sprzedawane bez mebli wolnostojących widocznych na pierwszym zdjęciu.
LOKALIZACJA:
Apartament znajduje się w zacisznej części Wilanowa w bliskim sąsiedztwie terenów zielonych w tym Rezerwatu Przyrody Skarpa Ursynowska i Parku Natolińskiego. Na terenie osiedla znajdują się kawiarnie i restauracje, miejsca zabaw dla dzieci oraz liczne ścieżki rowerowe, które sprawiają, że jest to idealne miejsce do życia rodzinnego. Bezpośrednio przy osiedlu znajdują przedszkola, szkoła brytyjska, szkoła niemiecka, SP im. A. Einsteina i liceum międzynarodowe Academeia.
INFORMACJE DODATKOWE:
* Dwa miejsca parkingowe w garażu podziemnym płatne dodatkowo 100.000 zł
* Duża komórka lokatorska płatna dodatkowo 30.000 zł
* Czynsz administracyjny wynosi około 2000 zł / miesięcznie.
Serdecznie zapraszam na prezentację!